鑫优配 90后夫妻改造不规则户型,入住后解锁新生活!

在讲究松弛的当下鑫优配,大家对空间的需求,比起模板化的套间,更希望能彰显出自己的“特性”。
像本期给大家分享的这套120㎡毛坯房改造案例,屋主便是一个随性,又很有自己的想法的人。
她希望空间采用贴近自然的原木风格,即原木材质多一些,然后比起其它花里胡哨的装饰陈设,她希望设计师从布局上多用点心思,让人住着能自在,有一回到家就放松下来的感觉。
至于设计师是怎么设计的,本期就带大家一起来一探究竟吧!
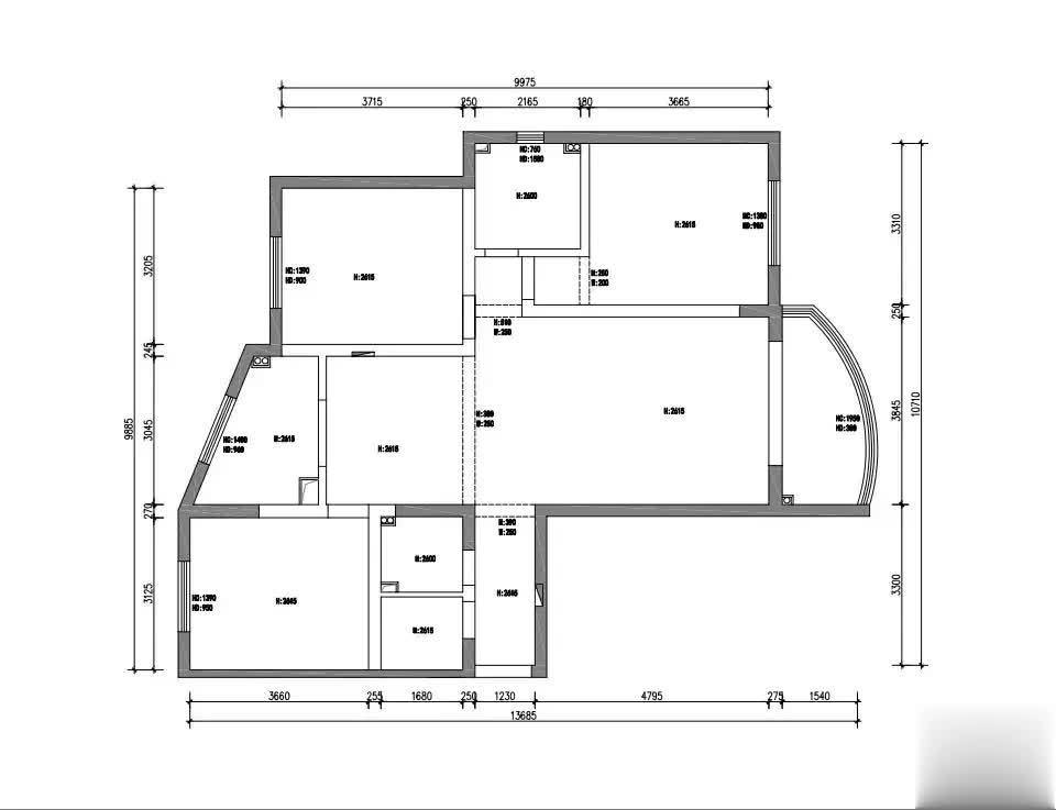
「项目信息」项目地址:青海
项目面积:120㎡
项目风格:原木风
项目户型:三房两厅两卫
「屋主需求」
01、需要书房,书房抬高;
02、主卫放浴缸,储物空间要多;
03、餐厅喜欢卡座;
04、喜欢阳台客厅一体化。
「设计重点」
01、入户旁公卫利用过道空间,将洗手台独立出来;
02、抬高书房地面鑫优配,对空间留空方便屋主自由布置;
03、利用厨房不规则的空间打造动线 流程 的操作台;
04、在过道空间增加岛台连接餐厅和厨房;
05、餐厅利用墙面增加卡座设计,餐厅对面增设餐边柜;
06、扩大主卧面积,增加主卧和功能设计。
在讲究松弛的当下,大家对空间的需求,比起模板化的套间,更希望能彰显出自己的“特性”。
像本期给大家分享的这套120㎡毛坯房改造案例,屋主便是一个随性,又很有自己的想法的人。
她希望空间采用贴近自然的原木风格,即原木材质多一些,然后比起其它花里胡哨的装饰陈设,她希望设计师从布局上多用点心思,让人住着能自在,有一回到家就放松下来的感觉。
至于设计师是怎么设计的,本期就带大家一起来一探究竟吧!
01、玄 关
设计重点:
设计师利用直通型的走廊,设计了白色一体化储物玄关,简洁、干净、却功能强大,可以让屋主入户便能感受到木质气息包围的舒适感。
02、公 卫

设计重点:
入户旁有个公卫,原布局狭小紧凑鑫优配,设计师利用走廊外扩的方法,将洗手台外置至走廊空间,加强干湿分离的舒适性。
外置的洗手台以白色瓷砖和绿色花砖进行搭配,配合整屋浓厚的木质气息,又清新又时尚,再加弧形镜面和悬浮洗手台的设计,亮点十足。
03、餐 厅


设计重点:
穿过弧形门洞,便是一个完全开阔明亮的多功能区。
首先是餐厅,结合屋主需要卡座的需求,以木质为主,结合墙面打造了一个长方形餐厅,可以容纳4—6人舒适用餐。
餐厅对面也打造了与墙面一体化的餐边柜,满足用餐时的餐盘、杯具、酒水、零食等收纳。
04、厨 房
设计重点:
原厨房布局属于不规则形状,由于户型原因没办法做太多太拆改,所以设计师在设计过程中,只拆除了厨房门洞,做了吧台和隐形推拉门,与餐厅紧密相连,尽可能优化屋主日常生活的动线,使其舒适又流畅。
然后再利用不规则形状,打造白色一体化隐形橱柜,用来收纳碗盘、厨具、调料品等物品,然后木色不规则操作台,由于动线合理,便利化的同时设计感十足。
05、客 厅

设计重点:
电视背景墙部分,为了让空间被合理利用,更加丰富化和功能化,设计师利用延伸的弧形墙面打造了隐形电视柜,内嵌电视,让观影和收纳都能满足。
搭配少而精的软装陈设,配合打通后的阳台空间,整个空间显得明亮又干净,哪怕是全开放式格局,也不会混乱无序。
06、阳 台
设计重点:
打通后的阳台,不仅可以做休闲区使用,还可以搭配洗烘套装做晾晒和洗衣。
07、书 房
设计重点:
因为屋主想要一个独立书房,因此利用了入户旁的次卧将其改造,利用木质地台抬升地面,设计投影仪及书柜,增加可收纳的空间。
这个空间属于屋主独立小天地,可以弹琴、发呆、阅读或者观影。
08、主 卧


设计重点:
屋主生活中比较偏于简约一点的生活方式,为此主卧设计上也尽量以舒适的空间感为主。
利用木质元素贯穿地面,打造木饰面的床头背景墙,日常休息便可以没有太多杂物可以干扰。
其次床尾做了超大储物柜,便于屋主衣物的收纳盒整理。而针对屋主想要主卫的部分鑫优配,设计师利用过道面积打造了一个拥有浴缸的明亮浴室。
天创网提示:文章来自网络,不代表本站观点。





